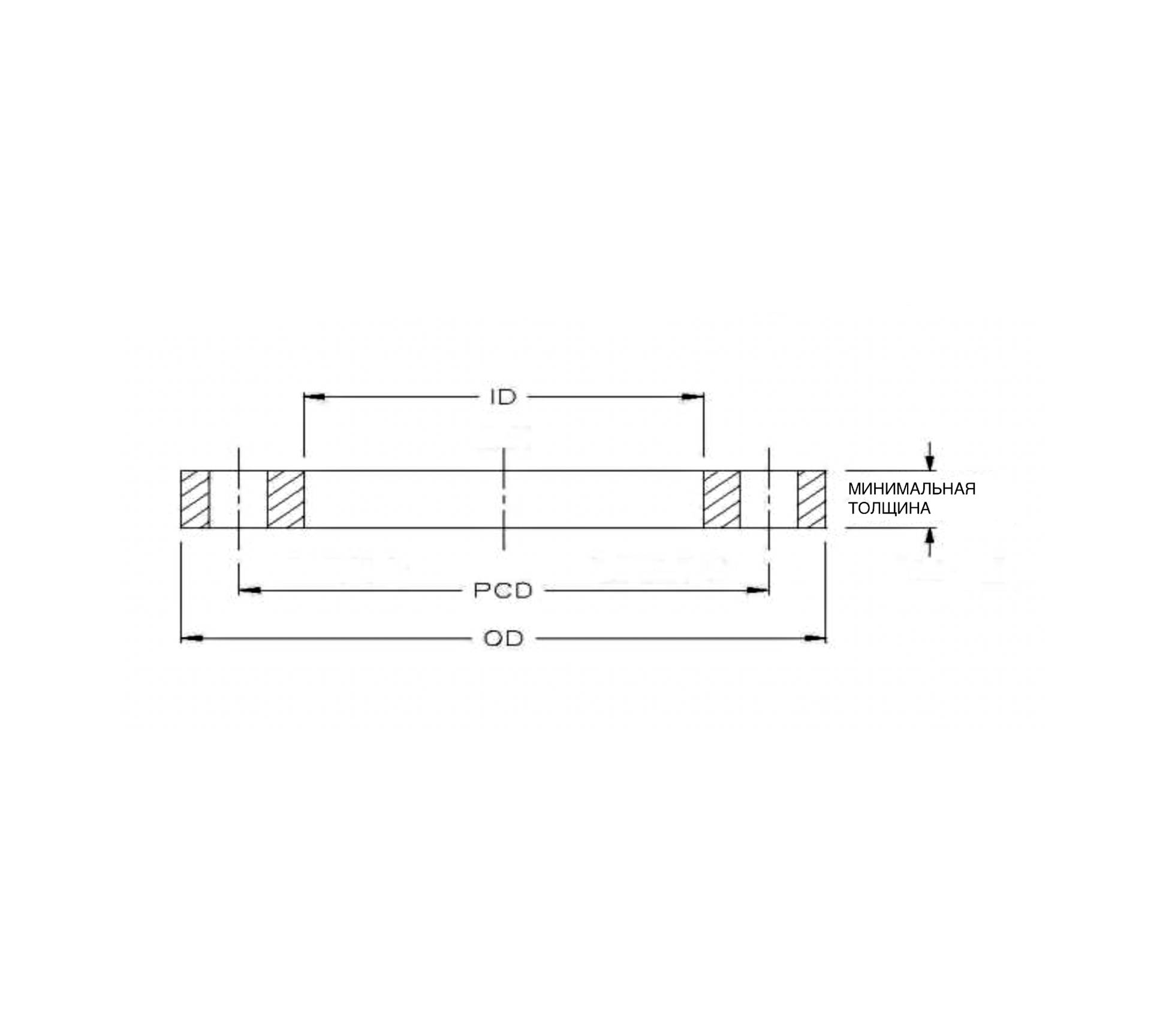
| diam | DN | PN | OD | PCD | ID | Кол-во болтов | diam отверстий под болты | Толщина | SC | Вес, гр. |
| 63 | 50 | 16 | 165 | 125 | 78 | 4 | 18 | 24 | М16 | 380 |
| 75 | 65 | 16 | 185 | 145 | 92 | 4 | 18 | 26 | М16 | 520 |
| 90 | 80 | 16 | 200 | 160 | 108 | 8 | 18 | 27 | М16 | 570 |
| 110 | 100 | 16 | 220 | 180 | 128 | 8 | 18 | 28 | М16 | 670 |
| 125 | 100 | 16 | 220 | 180 | 135 | 8 | 18 | 28 | М16 | 630 |
| 140 | 125 | 16 | 250 | 210 | 158 | 8 | 18 | 30 | М16 | 860 |
| 160 | 150 | 16 | 285 | 241 | 178 | 8 | 22 | 32 | М20 | 1200 |
| 180 | 150 | 16 | 285 | 240 | 188 | 8 | 22 | 32 | М20 | 1100 |
| 200 | 200 | 16 | 340 | 296,5 | 235 | 8 | 22 | 34 | М20 | 1590 |
| 225 | 200 | 16 | 340 | 296,5 | 238 | 8 | 22 | 34 | М20 | 1550 |
| 250 | 250 | 16 | 395 | 350 | 288 | 12 | 22 | 38 | М20 | 2130 |
| 280 | 250 | 16 | 395 | 350 | 294 | 12 | 22 | 38 | М20 | 2020 |
| 315 | 300 | 16 | 445 | 400 | 338 | 12 | 22 | 42 | М20 | 2740 |